4480 ŽST Komárno - prenájom nebytového priestoru

Vyvolávacia cena:Adresa na doručenie cenového návrhu:
1 157,40 €/rok
cena je bez DPH; DPH bude
pripočítaná v zmysle platných
právnych predpisov
Železnice Slovenskej republiky
Správa majetku ŽSR Bratislava
Regionálne pracovisko hospodárenia s majetkom Bratislava
Holekova 6
811 04 Bratislava

Kontaktná osoba:
Boháčová Ivana Ing.
bohacova.ivana@zsr.sk
+421 35 229 2263


Údaje k ponuke
Spôsob kapitalizácie:PrenájomDátum zverejnenia ponuky:01.12.2025
Forma súťaže:Ponukové konanieZačiatok lehoty na predkladanie cenových návrhov:02.12.2025
Okres:KomárnoKoniec lehoty na doručovanie cenových návrhov:29.12.2025 do 12:00
Obec:Komárno
Katastrálne územie:Komárno

Termín obhliadky:dohodou
Výhrada odstúpenia vyhlasovateľa od ponuky:áno

Účastnícky poplatok
Nenávratný poplatok za účasť v ponukovom konaní, ktorý je účastník povinný poukázať na účet vyhlasovateľa najneskôr do konca lehoty na doručovanie cenových návrhov), inak bude z ponukového konania vylúčený. V kolónke „informácia pre príjemcu“ je potrebné uviesť označenie uchádzača (obchodné meno právnickej osoby, resp. meno a priezvisko fyzickej osoby). Potvrdenie o úhrade účastníckeho poplatku musí byť ako príloha súčasťou cenového návrhu
Účastnícky poplatok suma:30,00 €
Účastnícky poplatok bankové spojenie:VÚB, a.s.
Účastnícky poplatok IBAN:SK11 0200 0000 3500 0470 0012
Účastnícky poplatok BIC:SUBASKBX
Účastnícky poplatok variabilný symbol:2200004480

Predmet ponuky
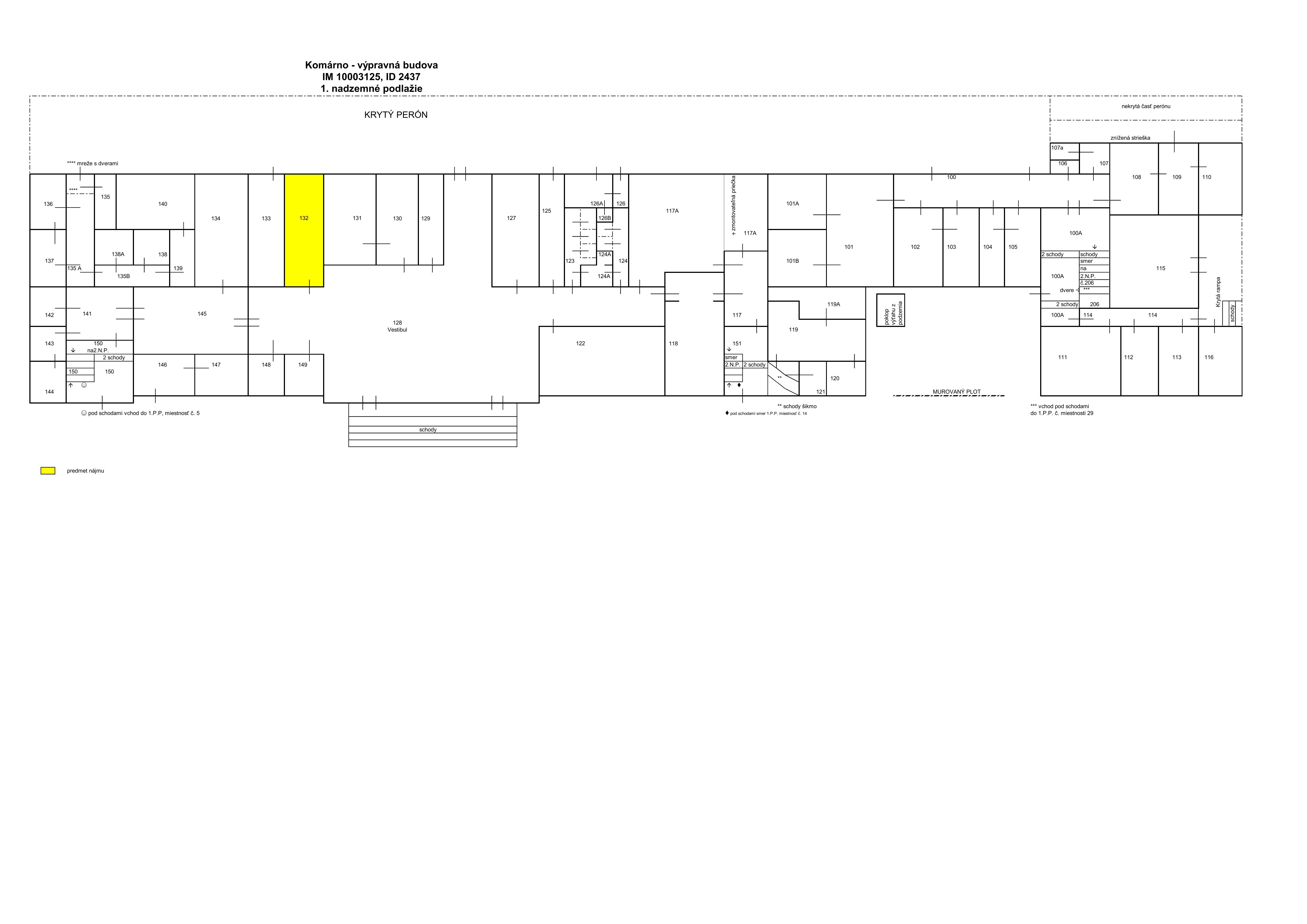
Nebytový priestor - miestnosť č. 132 o výmere 19,29 m2 vo výpravnej budove ŽST Komárno, s prívodom studenej a teplej vody
Bližšia špecifikácia ponuky
Nehnuteľný majetok
  • Nebytový priestor č. 132 (bufet), o výmere podlahovej plochy 19.29 m2, nachádzajúci sa na 1 podlaží domu, Komárno, súpisné číslo domu 673, postaveného na pozemku registra C KN parc. č. 8380, zapísaný na LV č. 2612 pre k.ú. Komárno

  • vedenom okresným úradom Komárno

    Účel využitia predmetu ponuky
    Záväzný účel využitia predmetu ponuky: maloobchod a/alebo veľkoobchod a/alebo služby, iný komerčný účel,
    Ponuky doručené s iným účelom nájmu budú pri vyhodnotení ponukového konania vylúčené
    Obmedzenia spojené s predmetom ponuky
     -  Predmet ponuky sa nachádza v ochrannom pásme železničnej dráhy, s čím sú spojené negatívne vplyvy a obmedzenia spôsobené bežnou železničnou prevádzkou; nakoľko je táto skutočnosť zohľadnená v cene, nebude možné si z tohto titulu uplatňovať u vyhlasovateľa žiadne ďalšie nároky

     -  vyhlasovateľ nebude Predmet ponuky zabezpečovať žiadnymi stavebnými úpravami na elimináciu hluku a negatívnych účinkov železničnej prevádzky

     -  činnosti vykonávané na Predmete ponuky je potrebné prispôsobiť dráhovým predpisom tak, aby bol vylúčený ich nepriaznivý vplyv na prevádzku dráhy a aby v budúcnosti neboli dotknuté záujmy vyhlasovateľa ako správcu železničných zariadení

    - Odhadované vedľajšie náklady k prenájmu: teplo ÚK: 403 € bez DPH/rok, odber vody 30 m3/ 45 m3/ 70 m3/osoba/rok, závisí od rozsahu ponúkaných služieb: j.c. vodné: 1,0193 € bez DPH/m3, j.c. stočné: 1,1952 € bez DPH/m3, komunálny odpad 60 až 140 € bez DPH/rok
    - Nájomca uzatvorí zmluvu na odber elektrickej energie s RSŽE Bratislava, vybuduje samostatné meranie spotreby elektriny. So Sekciou správy (Odd. služieb a médií) uzatvorí zmluvu na odber vody, tepla a likvidáciu komunálneho odpadu.
    - Nájomca si na vlastné náklady osadí vodomer na teplú a studenú vodu
    - Všetky úkony a investície s úpravou predmetu nájmu realizuje nájomca na vlastné náklady, v prípade ukončenia nájmu nebude požadovať úhradu nákladov spojených s úpravou predmetu nájmu.
    - Nájomca zodpovedá za plnenie štandardov ŽST na prenajatom majetku, náklady na udržanie štandardov si nebude uplatňovať u prenajímateľa.
    - Nájomca zabezpečí rozhodnutie Odboru dráhového stavebného úradu Bratislava MD SR o zmene účelu užívania časti stavby.

    Podmienky ponukového konania
    Vyhlasovateľ ponukového konania, Železnice Slovenskej republiky (ďalej aj ako „ŽSR“), ako správca majetku štátu na základe zákona č. 258/1993 Z. z. o Železniciach Slovenskej republiky v znení neskorších predpisov, vyhlasuje ponukové konanie na prenájom vyššie uvedeného nepotrebného majetku štátu v správe ŽSR.
    Cenový návrh, vyjadrený pevnou sumou v eurách bez DPH najmenej vo výške vyvolávacej ceny podľa tejto ponuky, vrátane všetkých dokladov a dokumentov požadovaných v zmysle tejto ponuky, musí byť predložený v slovenskom, prípadne v českom jazyku na adresu Regionálne pracovisko hospodárenia s majetkom Bratislava Holekova 6, 811 04 Bratislava, v uzatvorenej obálke, na ktorej uchádzač uvedie obchodné meno a adresu vyhlasovateľa, svoj názov (obchodné meno, resp. meno a priezvisko) a adresu s označením „Ponukové konanie - 4480 Komárno - NEOTVÁRAŤ“. Písomný cenový návrh je potrebné doručiť poštou alebo odovzdať osobne v lehote na doručovanie ponúk odo dňa nasledujúceho po zverejnení ponuky. Pri osobnom odovzdaní návrhu je možné návrh odovzdať v pracovných dňoch v čase od 8:00 do 14:00 na vyššie uvedenú adresu. V prípade predloženia návrhu v inom ako slovenskom alebo českom jazyku je potrebný úradný preklad do jazyka slovenského.
    Uchádzač môže predložiť len jeden cenový návrh. Cenový návrh musí byť podpísaný osobou/osobami oprávnenou/oprávnenými konať v mene uchádzača. Ak uchádzač nie je platiteľom DPH v Slovenskej republike, je povinný na túto skutočnosť upozorniť v cenovom návrhu.
    Povinné náležitosti cenového návrhu:
    Uchádzačom je fyzická osoba
    meno a priezvisko, trvalé bydlisko, bankové spojenie s uvedením čísla účtu, ktorého je uchádzač majiteľom , bližšia špecifikácia ponuky podľa tejto ponuky, cenový návrh za celý predmet ponuky v €/rok bez DPH alebo v €/m2/rok bez DPH v zmysle tejto ponuky; cena predložená v cenovom návrhu musí byť vyššia, minimálne rovná ako stanovená minimálna vyvolávacia cena, účel nájmu/využitia predmetu ponuky, podpis uchádzača, telefónny kontakt a/alebo e-mailová adresa, doklad o úhrade nenávratného účastníckeho poplatku a kópia dokladu totožnosti (iba v rozsahu údajov meno, priezvisko, trvalý pobyt; ostatné údaje musia byť zakryté/začiernené), kópia osvedčenia pre IČ DPH v prípade, ak uchádzač je platiteľom DPH;
    Uchádzačom je fyzická osoba oprávnená podnikať
    meno a priezvisko, trvalé bydlisko, obchodné meno, sídlo podnikania, IČO, IČ DPH, registrácia, bankové spojenie s uvedením čísla účtu, ktorého je uchádzač majiteľom , bližšia špecifikácia ponuky podľa tejto ponuky, cenový návrh za celý predmet ponuky v €/rok bez DPH alebo v €/m2/rok bez DPH v zmysle tejto ponuky; cena predložená v cenovom návrhu musí byť vyššia, minimálne rovná ako stanovená minimálna vyvolávacia cena , účel nájmu, meno, priezvisko, funkcia a podpis osoby oprávnenej konať v mene spoločnosti, odtlačok pečiatky spoločnosti, telefónny kontakt a/alebo e-mailová adresa, doklad o úhrade nenávratného účastníckeho poplatku a kópia dokladu totožnosti (iba v rozsahu údajov meno, priezvisko, rodné priezvisko, trvalý pobyt; ostatné údaje musia byť zakryté/začiernené), výpisu zo živnostenského registra a osvedčenia pre IČ DPH ak uchádzač je platiteľom DPH;
    Uchádzačom je právnická osoba
    obchodné meno, sídlo, IČO, IČ DPH, registrácia, právna forma, bankové spojenie s uvedením čísla účtu, ktorého je uchádzač majiteľom , bližšia špecifikácia ponuky podľa tejto ponuky, meno, priezvisko, funkcia a podpis osoby oprávnenej konať v mene spoločnosti, odtlačok pečiatky spoločnosti, cenový návrh za celý predmet ponuky v €/rok bez DPH alebo v €/m2/rok bez DPH v zmysle tejto ponuky; cena predložená v cenovom návrhu musí byť vyššia, minimálne rovná ako stanovená minimálna cena, telefónny kontakt a/alebo e-mailová adresa, doklad o úhrade účastníckeho poplatku a kópia výpisu z obchodného registra a osvedčenia pre IČ DPH ak uchádzač je platiteľom DPH.
    Upozornenie
    Od úspešného uchádzača si vyhlasovateľ pred podpisom zmluvného vzťahu vyžiada originály resp. úradne osvedčené fotokópie originálov dokladov, ktoré predložil vo svojom cenovom návrhu. V prípade ich nepredloženia vyhlasovateľ s úspešným uchádzačom neuzatvorí zmluvný vzťah.
    Každý cenový návrh musí okrem údajov uvedených v povinných náležitostiach cenového návrhu obsahovať:
       -    súhlas:
          •     s použitím osobných údajov, s vyhlásením, že sa uchádzač oboznámil s podmienkami a princípmi ochrany osobných
                 údajov v spoločnosti ŽSR a že svoje osobné údaje poskytol v súlade so zákonom č. 18/2018 Z.z. o ochrane osobných údajov a o zmene a doplnení niektorých zákonov,
          •     s podmienkami ponukového konania,
       -    vyhlásenie:
          •     o závislosti uchádzača voči vyhlasovateľovi v zmysle § 2 písm. n) zákona č. 595/2003 Z.z. o dani z príjmov v z.n.p.
          •     o vzťahu k verejnému sektoru - partner verejného sektora v zmysle zákona č. 315/2016 Z.z. o registri partnerov verejného sektora v z.n.p.,
          •     o vzťahu uchádzača voči DPH (platiteľ/neplatiteľ),
          •     o prípadnom konaní konkurzu na majetok uchádzača počas ponukového konania,
          •     o prípadnom konkurznom a reštrukturalizačnom konaní na majetok uchádzača počas ponukového konania,
          •     o súdnom spore uchádzača s vyhlasovateľom,
          •     o záväzkoch uchádzača voči vyhlasovateľovi

    Cenovú ponuku odporúčame zaslať na tlačive vytvorenom prostredníctvom funkcionality „Generovať ponuku“ v závere tejto ponuky.
    Vyhlasovateľ akceptuje aj cenové návrhy predložené iným spôsobom ako prostredníctvom funkcionality „Generovať ponuku“, ak budú obsahovať všetky predpísané údaje a prílohy.
    Ochrana osobných údajov
    Získavané osobné údaje uchádzača o nájom Predmetu ponuky sú spracúvané za účelom prenájmu majetku vo vlastníctve SR a v správe ŽSR. Spracúvanie osobných údajov je nevyhnutné na plnenie zmluvy (nájomná zmluva), ktorej zmluvnou stranou je uchádzač a na vykonanie opatrení pred uzatvorením zmluvy, ako aj na splnenie zákonných povinností, ktoré ŽSR ako poskytovateľovi vyplývajú z príslušnej legislatívy. V prípade neposkytnutia osobných údajov nie je možné uzatvorenie zmluvy. Ďalšie informácie o spracúvaní osobných údajov sú dostupné na www.zsr.sk/ou, najmä v rámci nasledovných spracovateľských činností:
          -     evidencia a predaj nehnuteľností,
          -     vedenie účtovnej agendy,
          -     zverejňovanie zmlúv a faktúr.


    UPOZORNENIE PRE UCHÁDZAČOV O PONÚKANÝ MAJETOK ŠTÁTU !
    Záujem o ponúkaný majetok štátu v správe ŽSR ako vyhlasovateľa ponukového konania možno prejaviť len písomnou žiadosťou včas doručenou vyhlasovateľovi (cenovú ponuku odporúčame realizovať prostredníctvom funkcie „Generovať ponuku“ v závere tejto ponuky). Ponukové konanie sa uskutoční z doručených cenových návrhov, ktoré budú spĺňať podmienky ponukového konania. Za platne predložený cenový návrh sa považuje ten, ktorý je uchádzačom predložený v súlade s podmienkami uvedenými v tejto ponuke na celý predmet ponuky a v určenom termíne. K cenovému návrhu bude pripočítaná DPH v zmysle platných právnych predpisov. Otváranie a vyhodnotenie cenových návrhov sa uskutoční komisionálne v sídle vyhlasovateľa alebo vyhlasovateľom určenom mieste a je neverejné. Kritériom výberu je najvýhodnejší cenový návrh. Jednotliví uchádzači budú o výsledku písomne informovaní spravidla do tridsiatich (30) dní od zasadnutia hodnotiacej komisie.

    Ponukové konanie je úspešné, ak aspoň jeden uchádzač splnil určené podmienky, teda

        •   nie je osobou spriaznenou (§ 9 zákona č. 7/2005 Z. z. o konkurze a reštrukturalizácii a o zmene a doplnení niektorých zákonov v znení neskorších predpisov) s vyhlasovateľom,
        •   predložil cenový návrh vyjadrený pevnou sumou najmenej v požadovanej výške v zmysle podmienok uvedených v tejto ponuke a
        •   riadne a včas uhradil nenávratný poplatok.

    Víťaznému uchádzačovi ponukového konania bude vyhlasovateľom zaslaný návrh nájomnej zmluvy a vyrozumenie, že jeho cenový návrh prijíma , a to najneskôr do tridsiatich (30) dní odo dňa komisionálneho vyhodnotenia ponukového konania. Víťazný uchádzač je povinný sa v lehote do desiatich (10) dní od doručenia návrhu nájomnej zmluvy k návrhu vyjadriť. V prípade, že:
        •  víťazný uchádzač s predloženým návrhom nájomnej zmluvy súhlasí bez pripomienok, doručí v uvedenej lehote podpísaný návrh nájomnej zmluvy vyhlasovateľovi.
        •  nebude v uvedenej lehote doručené od víťazného uchádzača stanovisko k návrhu nájomnej zmluvy alebo ním podpísaná nájomná zmluva, bude to považované za zmarenie ponukového konania, víťazný uchádzač stráca nárok na
            uzatvorenie nájomnej zmluvy a návrh na uzavretie nájomnej zmluvy sa bude považovať za zaniknutý.
        •  v stanovenej lehote budú víťazným uchádzačom doručené požiadavky na úpravu znenia návrhu nájomnej zmluvy, vyhlasovateľ ich vyhodnotí; víťaznému uchádzačovi bude zaslaný nový, doplnený návrh nájomnej zmluvy, ktorý je víťazný
           uchádzač povinný prijať a podpísať, a v lehote do desiatich (10) dní od jeho doručenia vrátiť späť vyhlasovateľovi; nedodržanie stanoveného termínu bude považované za zmarenie ponukového konania, víťazný uchádzač stráca nárok na
           uzatvorenie nájomnej zmluvy a návrh na uzavretie nájomnej zmluvy sa bude považovať za zaniknutý.

    Neúspešným uchádzačom ponukového konania vyhlasovateľ písomne oznámi, na adresy uvedené v doručených cenových návrhoch, že ich cenový návrh neprijíma, resp., že ich cenový návrh bol z ponukového konania vylúčený, a to najneskôr do tridsiatich (30) dní od dňa komisionálneho vyhodnotenia.

    Víťazný uchádzač je svojim cenovým návrhom viazaný až do času ukončenia ponukového konania k predmetu ponuky. Ak víťazný uchádzač odstúpi od svojho cenového návrhu a neuzavrie s vyhlasovateľom na základe jeho výzvy nájomnú zmluvu k predmetu ponuky, bude to považované za zmarenie ponukového konania a víťazný uchádzač stráca nárok na uzatvorenie nájomnej zmluvy a návrh na uzavretie nájomnej zmluvy sa bude považovať za zaniknutý.

    Z ponukového konania sa vylučujú cenové návrhy:
        •   predložené po uplynutí lehoty stanovenej na predkladanie cenových návrhov,
        •   ktoré neobsahujú všetky požadované údaje uvedené v podmienkach ponukového konania,
        •   uchádzačov, na majetok ktorých bol vyhlásený konkurz, proti ktorým bolo počas ponukového konania začaté konkurzné alebo reštrukturalizačné konanie, proti ktorým bol pre nedostatok majetku zamietnutý návrh
            na vyhlásenie konkurzu,
        •   uchádzačov, ktorí majú akékoľvek podlžnosti voči vyhlasovateľovi ponukového konania a/alebo sú v súdnom spore s vyhlasovateľom,
        •   s uvedením využitia predmetu ponuky, ktorý je v rozpore s účelom definovaným vyhlasovateľom, resp. ktoré je vyhlasovateľom vylúčené,
        •   uchádzačov, ktorí sú osobou spriaznenou s vyhlasovateľom v zmysle § 9 zákona č. 7/2005 Z. z. o konkurze a reštrukturalizácii a o zmene a doplnení niektorých zákonov v znení neskorších predpisov.
    Uchádzačom, ktorých cenové návrhy nebudú spĺňať podmienky ponukového konania, budú neúplné alebo vylúčené, vyhlasovateľ v lehote najneskôr do tridsiatich (30) dní od dňa komisionálneho vyhodnotenia
    písomne oznámi, že ich cenový návrh neprijíma.

    Všetky výdavky, spojené s prípravou a predložením cenového návrhu znáša uchádzač bez akéhokoľvek finančného alebo iného nároku voči vyhlasovateľovi.

    Ak sa na fyzickú osobu alebo právnickú osobu vzťahuje povinnosť zapisovať sa do registra partnerov verejného sektora, vyhlasovateľ môže uzavrieť zmluvu k predmetu ponuky s takouto osobou len vtedy, ak je zapísaná v registri partnerov verejného sektora.

    Vyhlasovateľ si vyhradzuje právo:
        •   odmietnuť všetky predložené cenové návrhy,
        •   meniť uvedené podmienky ponukového konania,
        •   vziať späť prijatie najvýhodnejšieho cenového návrhu,
        •   zrušiť ponukové konanie,
        •   pri formálnych nedostatkoch cenového návrhu, ktoré nemenia jeho obsah, vyzvať uchádzača na doplnenie a vykonanie opravy,
        •   v prípade doručenia dvoch rovnakých cenových návrhov s najvyššou cenou vyzvať uchádzačov, alebo niektorých z nich, na doplnenie
             ich cenového návrhu, za účelom dosiahnutia výhodnejšieho cenového návrhu (užšie ponukové konanie).

    Až do ukončenia ponukového konania vyhlasovateľ neposkytuje informácie o jeho priebehu ani žiadne iné informácie, ktoré by mohli ovplyvniť výsledky vyhodnotenia.

    Ponukové konanie sa považuje za ukončené:
        •   nadobudnutím účinnosti nájomnej zmluvy,
        •   zrušením ponukového konania,
        •   neprijatím ani jedného doručeného cenového návrhu,
        •   márnym uplynutím lehoty na predkladanie cenových návrhov.

    Vyhlásené ponukové konanie nie je verejným návrhom na uzatvorenie zmluvy ani obchodnou verejnou súťažou v zmysle platných právnych predpisov.



    Na účely zákona č. 315/2016 Z. z. o registri partnerov verejného sektora sa rozumie:
    (1) partnerom verejného sektora je

      a) ak v odsekoch 2 až 4 nie je ustanovené inak, fyzická osoba alebo právnická osoba, ktorá nie je subjektom verejnej správy a
        1. ktorá prijíma finančné prostriedky zo štátneho rozpočtu, z rozpočtu štátneho účelového fondu, z rozpočtu verejnoprávnej inštitúcie, z rozpočtu obce, z rozpočtu vyššieho územného celku, z európskych štrukturálnych a investičných fondov,        od právnickej osoby zriadenej zákonom, od právnickej osoby, ktorá je úplne alebo z väčšej časti financovaná štátom, obcou, vyšším územným celkom alebo právnickou osobou zriadenou zákonom, ktorá je kontrolovaná štátom, obcou,
           vyšším územným celkom alebo právnickou osobou zriadenou zákonom alebo v ktorej štát, obec, vyšší územný celok alebo právnická osoba zriadená zákonom vymenúva alebo volí viac ako polovicu členov jej riadiaceho orgánu alebo
           kontrolného orgánu, od zdravotnej poisťovne alebo prijíma štátnu pomoc alebo investičnú pomoc,
        2. ktorá prijíma plnenie, ktorého predmetom je majetok, práva k majetku alebo iné majetkové práva štátu, verejnoprávnej inštitúcie, obce, vyššieho územného celku, právnickej osoby zriadenej zákonom alebo od právnickej osoby, ktorá je
           úplne alebo z väčšej časti financovaná štátom, obcou, vyšším územným celkom alebo právnickou osobou zriadenou zákonom, ktorá je kontrolovaná štátom, obcou, vyšším územným celkom alebo právnickou osobou zriadenou zákonom
           alebo v ktorej štát, obec, vyšší územný celok alebo právnická osoba zriadená zákonom vymenúva alebo volí viac ako polovicu členov jej riadiaceho orgánu alebo kontrolného orgánu, alebo od zdravotnej poisťovne,
        3. ktorá uzatvára zmluvu, rámcovú dohodu alebo koncesnú zmluvu podľa osobitného predpisu,
        4. ktorá je poskytovateľom zdravotnej starostlivosti, ktorý má so zdravotnou poisťovňou uzavretú zmluvu o poskytovaní zdravotnej starostlivosti,
        5. ktorá sa povinne zapisuje do registra podľa osobitného predpisu,
        6. na ktorú bola postúpená alebo inak nadobudla pohľadávku voči štátu, štátnemu fondu, verejnoprávnej inštitúcii, obci, vyššiemu územnému celku alebo právnickej osobe zriadenej zákonom alebo
        7. ktorá priamo alebo prostredníctvom ďalších osôb dodáva osobám podľa prvého až piateho bodu tovary alebo služby alebo nadobúda od nich majetok, práva k majetku alebo iné majetkové práva a súčasne vie alebo má vedieť,
           že ňou poskytované plnenia alebo nadobúdaný majetok, práva k majetku alebo iné majetkové práva súvisia so zmluvou podľa písmena d),
    (2) Partnerom verejného sektora podľa odseku 1 písm. a) prvého, tretieho, štvrtého, šiesteho a siedmeho bodu nie je ten, komu majú byť jednorazovo poskytnuté finančné prostriedky neprevyšujúce sumu 100 000 eur alebo v úhrne neprevyšujúce sumu 250 000 eur v kalendárnom roku, ak ide o opakujúce sa plnenie; to neplatí, ak výšku štátnej pomoci alebo investičnej pomoci nemožno v čase zápisu do registra určiť.
    (3) Partnerom verejného sektora podľa odseku 1 písm. a) druhého a šiesteho bodu nie je ten, kto má jednorazovo nadobudnúť majetok, práva k majetku alebo iné majetkové práva, ktorých všeobecná hodnota úhrnne neprevyšuje sumu 100 000 eur.
    (4) Partnerom verejného sektora nie je ani
      a) osoba, ktorá prevažne pôsobí v neziskovom sektore; to neplatí, ak dodáva tovary alebo služby podľa zmluvy, rámcovej dohody alebo koncesnej zmluvy podľa osobitného predpisu s cieľom dosiahnuť zisk alebo nadobúda majetok, práva
           k majetku alebo iné majetkové práva, ktorých všeobecná hodnota úhrnne prevyšuje sumu podľa odseku 3,
      b) banka a pobočka zahraničnej banky, ak prijíma finančné prostriedky zo štátneho rozpočtu, z rozpočtu štátneho fondu, z rozpočtu verejnoprávnej inštitúcie, z rozpočtu obce, z rozpočtu vyššieho územného celku, od právnickej osoby
           zriadenej zákonom, od právnickej osoby, ktorá je úplne alebo z väčšej časti financovaná štátom, obcou, vyšším územným celkom alebo právnickou osobou zriadenou zákonom, ktorá je kontrolovaná štátom, obcou, vyšším územným celkom
           alebo právnickou osobou zriadenou zákonom alebo v ktorej štát, obec, vyšší územný celok alebo právnická osoba zriadená zákonom vymenúva alebo volí viac ako polovicu členov jej riadiaceho orgánu alebo kontrolného orgánu,
           alebo od zdravotnej poisťovne na účely splnenia záväzku z úveru alebo pôžičky,
      c) osoba, ktorá prijíma plnenie od zastupiteľského úradu Slovenskej republiky v zahraničí za dodanie tovaru, uskutočnenie stavebných prác alebo poskytnutie služby alebo plnenie v rámci rozvojovej spoluprácu alebo medzinárodnej
           humanitárnej pomoci.

    Závislou osobou (§2 písm. n) ZDP) sa rozumie blízka osoba (§116 a 117 Občianskeho zákonníka) alebo ekonomicky, personálne alebo inak prepojená osoba.
    Blízka osoba (§116 a 117 Občianskeho zákonníka)
    1. V zmysle §116 Občianskeho zákonníka blízkou osobou je príbuzný v priamom rade, súrodenec a manžel; iné osoby v pomere rodinnom alebo obdobnom sa pokladajú za osoby sebe navzájom blízke, ak by ujmu, ktorú utrpela jedna z nich, druhá dôvodne pociťovala ako vlastnú ujmu.
    2. V zmysle §117 Občianskeho zákonníka stupeň príbuzenstva dvoch osôb sa určuje podľa počtu zrodení, ktorými v priamom rade pochádza jedna od druhej a v pobočnom rade obidve od najbližšieho spoločného predka.
    Ekonomickým alebo personálnym prepojením (§2 písm. o) ZDP) sa rozumie účasť osoby na majetku, kontrole alebo vedení inej osoby alebo vzájomný vzťah medzi osobami, ktoré sú pod kontrolou alebo vedením tej istej osoby alebo v ktorých má táto osoba priamy alebo nepriamy majetkový podiel, pričom
      1. účasťou na majetku alebo kontrole sa rozumie viac ako 25% priamy alebo nepriamy podiel alebo nepriamy odvodený podiel na základnom imaní alebo na hlasovacích právach, pričom
        · nepriamy podiel sa vypočíta súčinom percentuálnej výšky priamych podielov vydelených stomi a takto vypočítaný výsledok sa vynásobí stomi
           a
        · nepriamy odvodený podiel sa vypočíta súčtom nepriamych podielov; nepriamy odvodený podiel sa použije len na výpočet výšky účasti jednej osoby na majetku alebo kontrole inej osoby, ak táto jedna osoba má účasť na majetku alebo
          kontrole niekoľkých osôb, z ktorých každá má účasť na majetku alebo kontrole tej istej inej osoby; ak výška nepriameho odvodeného podielu presahuje 50%, všetky osoby, prostredníctvom ktorých sa jeho výška počítala, sú ekonomicky
          prepojené bez ohľadu na skutočnú výšku ich podielu,
      2. účasťou na vedení sa rozumie vzťah členov štatutárnych orgánov alebo členov dozorných orgánov obchodnej spoločnosti alebo družstva k tejto obchodnej spoločnosti alebo družstvu. Iným prepojením (§2 písm. p) ZDP) sa rozumie
          obchodný vzťah vytvorený predovšetkým na účel zníženia základu dane alebo zvýšenia daňovej straty.

    PRÍLOHY:
    -   



    1 1
    Návrat na zoznamGenerovať ponukuTlač pdf